Carrosserie Car Design
Carrosserie Car Design - Chamoson
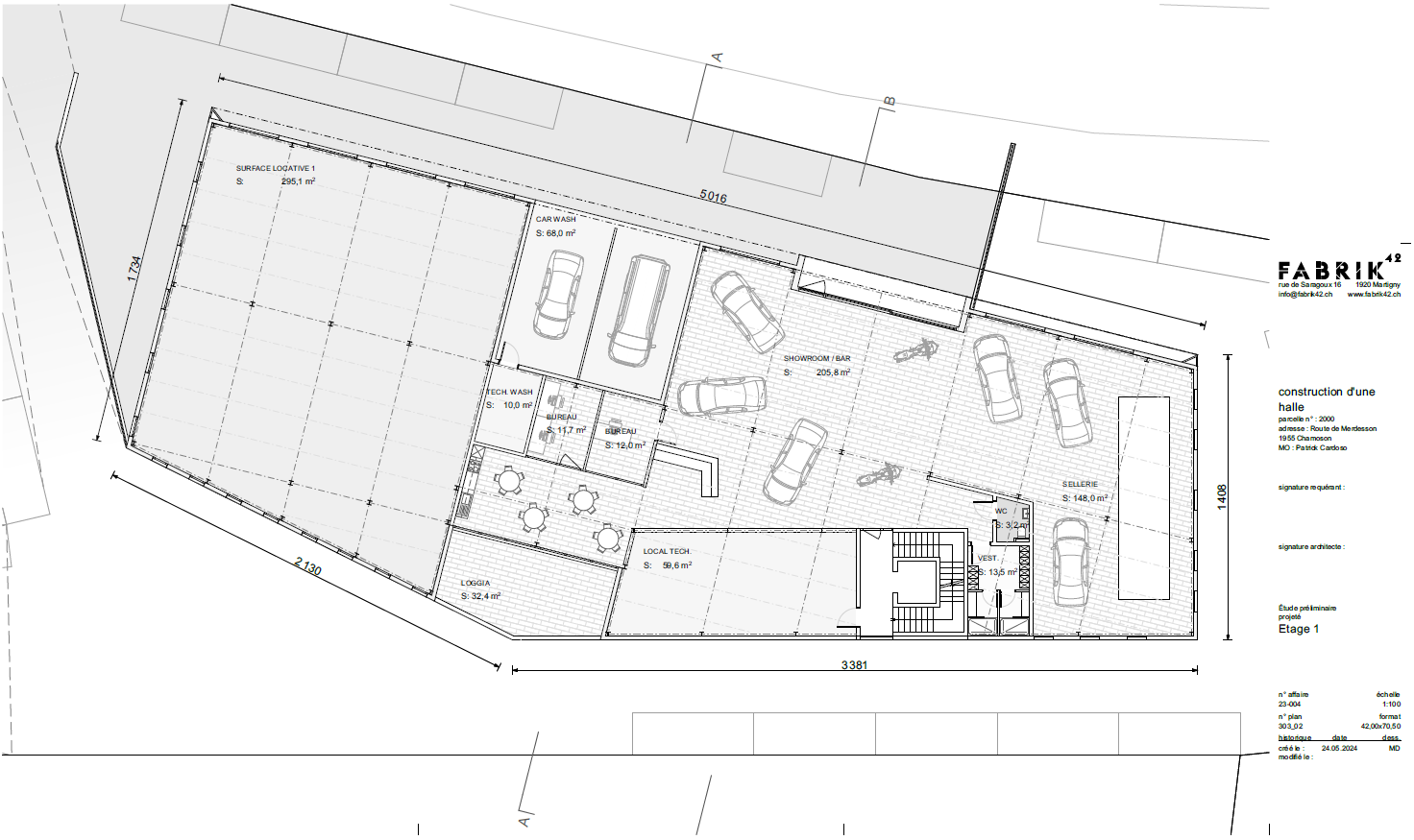
Projet d’un garage comprenant une sellerie, un garage à bus, un carwash et des surfaces locatives.
Localisation
Route du Merdesson, 1955 Chamoson
Année
2022
Volume SIA
10.200 m3
Client / Maître de l'ouvrage
Cardesign SA
Catégorie d'ouvrage
Halle industrielle













