Eva Game
Eva GAME Quartz - Martigny
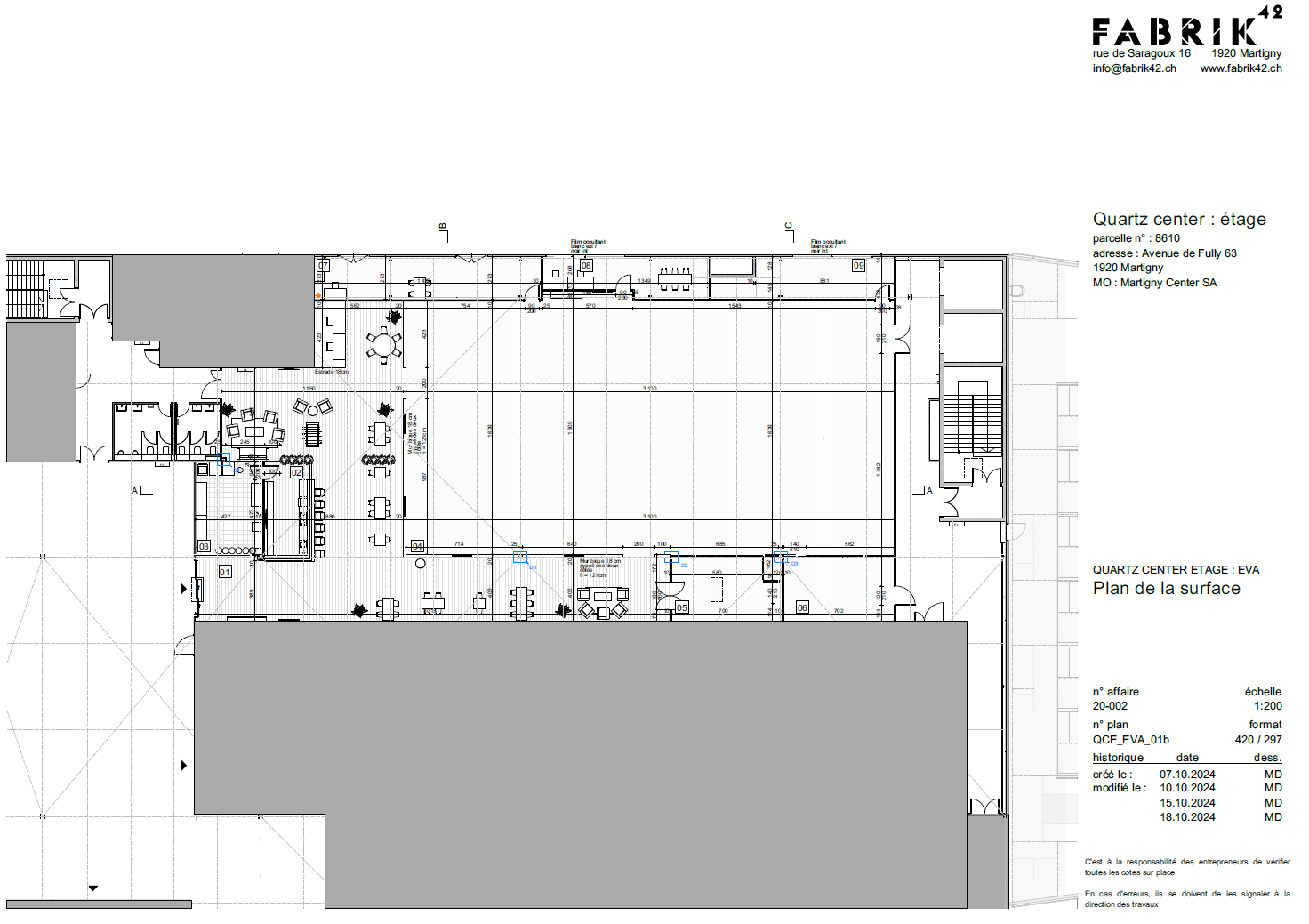
Réaménagement de local dans un centre commercial création d’un espace de jeux virtuels.
Localisation
Avenue de Fully 63, 1920 Martigny
Année
2024 - 2025
Volume SIA
Environ 4.000 m3
Client / Maître de l'ouvrage
EVA GAME
Catégorie d'ouvrage
Centre commercial










