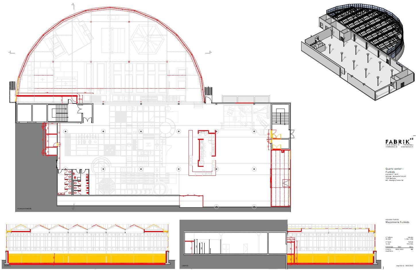
Kids Fun Park
Kids Fun Park - Martigny
Réaménagement de local dans un centre commercial création d’un espace de jeux dédié aux enfants.
Localisation
Avenue de Fully 63, 1920 Martigny
Année
2020 - 2021
Volume SIA
Environ 15.000 m3
Client / Maître de l'ouvrage
Kids Fun Park
Catégorie d'ouvrage
Centre commercial, espace de jeux pour enfants













