Clos des Condemines
Clos des Condemines - Grimisuat
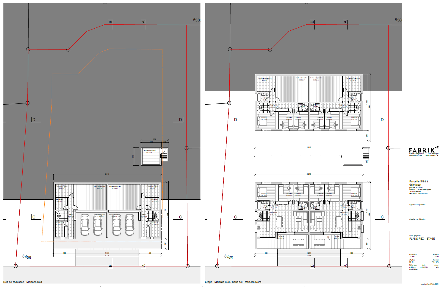
Conception de villas mitoyennes qui s’inscrivent harmonieusement dans la pente du terrain, jouant avec des volumes contemporains.
Localisation
Chemin de Singline, 1971 Grimisuat
Année
2021
Volume SIA
Environ 3.300 m3
Client / Maître de l'ouvrage
VS Invest
Catégorie d'ouvrage
Villas mitoyennes















