Plan de quartier St-Pierre de Clages
Plan de quartier St-Pierre de Clages
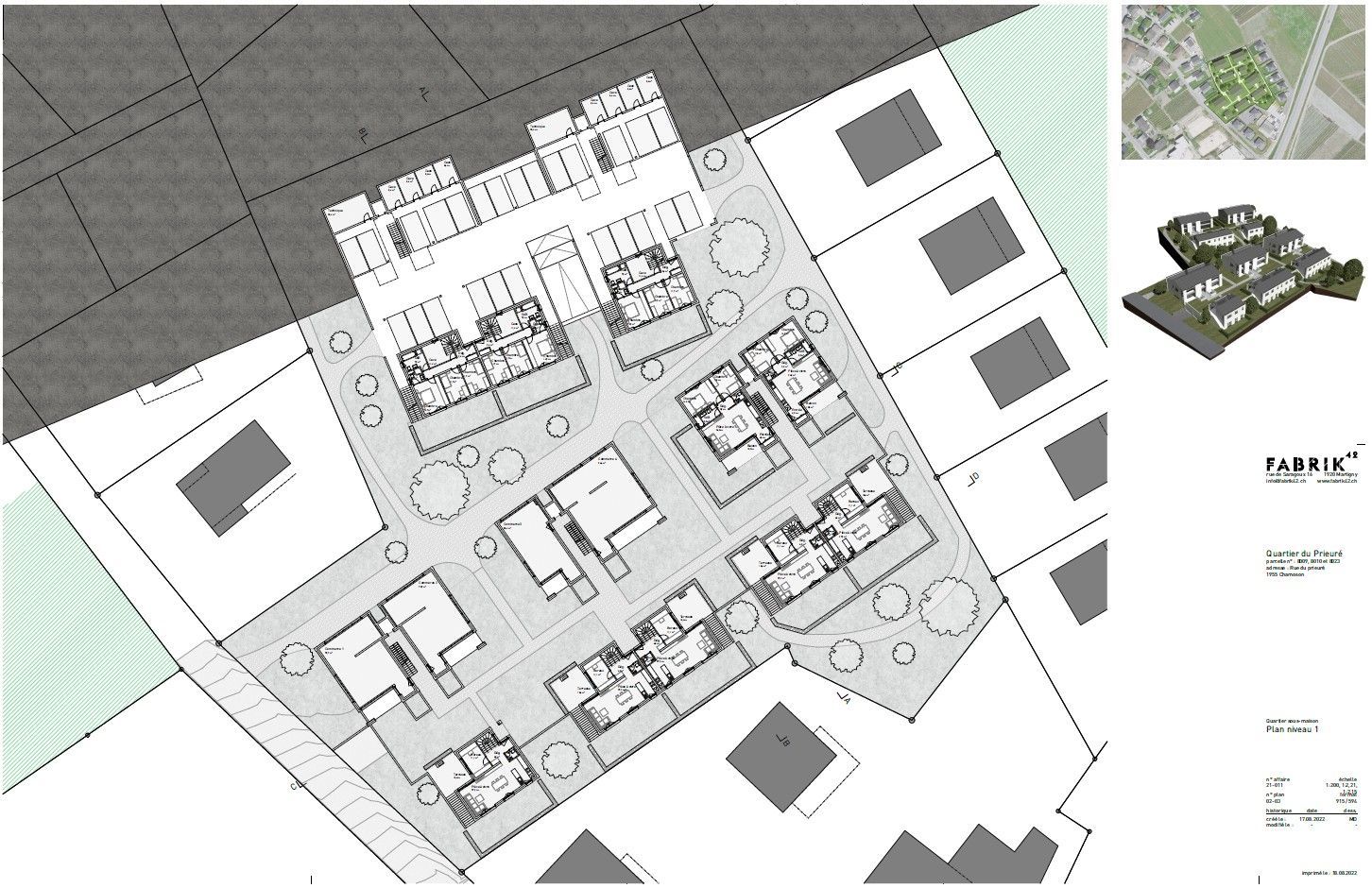
Etude de plan de quartier comprenant 10 bâtiments d’habitation.
Localisation
Rue du Prieuré, 1955 Chamoson
Année
2021
Volume SIA
Env. 4’000m2
Client / Maître de l'ouvrage
-
Catégorie d'ouvrage
Etude de plan quartier











